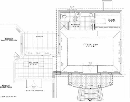
The Hampton Residence

 A response to a unique need for a dual-purpose exercise room and second "his" master bath resulted in an unusual plan but traditional elevation to an existing traditional Williamsburg home. The tight plan requirements resulted in an addition that ties into both the Master Bedroom and the existing back sunroom through a small solarium. The addition focuses on and helps to afford privacy to new backyard areas while creating a small garden off of the Master Bedroom.

E-mail | Home | FAQ